كيفية عمل القاعدة الخرسانية في مستوي واحد باضافة مواد



الشدات الخشبية للقواعد المسلحة مكوناتها وتنفيذها بالصور أسود البيزنس

الشدات الخشبية للقواعد المسلحة مكوناتها وتنفيذها بالصور أسود البيزنس

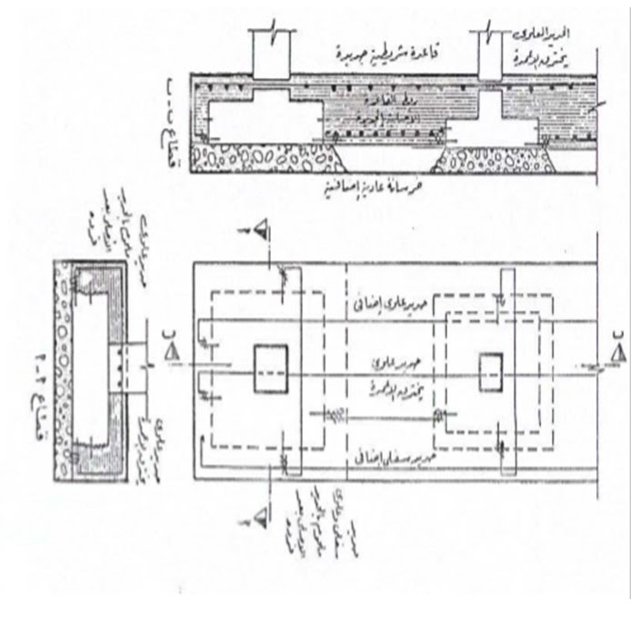
مبادئ تصميم اساسات القواعد الشريطية Fantastic Engineers Facebook

مبادئ تصميم اساسات القواعد الشريطية Fantastic Engineers Facebook

انواع القواعد وكيفية التصميم 1 طلاب الهندسة المدنية و المعمارية Facebook

انواع القواعد وكيفية التصميم 1 طلاب الهندسة المدنية و المعمارية Facebook

الشدات الخشبية للقواعد المسلحة مكوناتها وتنفيذها بالصور أسود البيزنس

الشدات الخشبية للقواعد المسلحة مكوناتها وتنفيذها بالصور أسود البيزنس

أساسات القواعد الشريطية Strip المهندس مرزوق الزبيري Eng Marzok Alzubiry فيسبوك

أساسات القواعد الشريطية Strip المهندس مرزوق الزبيري Eng Marzok Alzubiry فيسبوك

الشدات الخشبية للقواعد المسلحة مكوناتها وتنفيذها بالصور أسود البيزنس

الشدات الخشبية للقواعد المسلحة مكوناتها وتنفيذها بالصور أسود البيزنس

الشدات الخشبية للقواعد المسلحة مكوناتها وتنفيذها بالصور أسود البيزنس

قاعدة تحت أسس الأعمدة حساب الأساس لعمود معدني والصلب جمع الحمل

قاعدة تحت أسس الأعمدة حساب الأساس لعمود معدني والصلب جمع الحمل

كيفية ملء الفناء بشكل صحيح بالخرسانة تعليمات مفصلة مع صورة افعل ذلك بنفسك ساحة خرسانية كيف تصنع الفناء بنفسك

كيفية ملء الفناء بشكل صحيح بالخرسانة تعليمات مفصلة مع صورة افعل ذلك بنفسك ساحة خرسانية كيف تصنع الفناء بنفسك

كيفية عمل شريط تحت السياج تركيب أساس قطاعي للسور فيديو تحت الأسوار الثقيلة

كيفية عمل شريط تحت السياج تركيب أساس قطاعي للسور فيديو تحت الأسوار الثقيلة

مكونات وانواع ومواصفات ومراحل صناعة و زمن تصلب الخرسانة أسود البيزنس

مكونات وانواع ومواصفات ومراحل صناعة و زمن تصلب الخرسانة أسود البيزنس

انواع القواعد وكيفية التصميم 1 طلاب الهندسة المدنية و المعمارية Facebook

انواع القواعد وكيفية التصميم 1 طلاب الهندسة المدنية و المعمارية Facebook

تدعيم واصلاح القواعد الخرسانية والطرق المختلفة وطريقه التنفيذ

تدعيم واصلاح القواعد الخرسانية والطرق المختلفة وطريقه التنفيذ

الحدادة أدوات الحدادة المسلحة ومصطلحاتها وأساسياتها بالصور أسود البيزنس

الحدادة أدوات الحدادة المسلحة ومصطلحاتها وأساسياتها بالصور أسود البيزنس

كيفية حساب أساس الشريط مثال على الحساب المادة كيف تحسب الأساس للمنزل

كيفية حساب أساس الشريط مثال على الحساب المادة كيف تحسب الأساس للمنزل

تدعيم واصلاح القواعد الخرسانية والطرق المختلفة وطريقه التنفيذ

تدعيم واصلاح القواعد الخرسانية والطرق المختلفة وطريقه التنفيذ

المواد التي لا تسمح بتكوين شقوق انكماشية شقوق في الخرسانة

المواد التي لا تسمح بتكوين شقوق انكماشية شقوق في الخرسانة

كيفية صنع أرضية على الأرض إنشاءات 2021

كيفية صنع أرضية على الأرض إنشاءات 2021

صب حزام مقوى كيف تملأ الحزام المقوى ما هو Armopoyas

صب حزام مقوى كيف تملأ الحزام المقوى ما هو Armopoyas

تدعيم واصلاح القواعد الخرسانية والطرق المختلفة وطريقه التنفيذ

تدعيم واصلاح القواعد الخرسانية والطرق المختلفة وطريقه التنفيذ

Http Site Iugaza Edu Ps Nsawalhi Files 2010 09 5 D8 A7 D9 84 D8 A7 D8 B3 D8 A7 D8 B3 D8 A7 D8 Aa Pdf

Http Site Iugaza Edu Ps Nsawalhi Files 2010 09 5 D8 A7 D9 84 D8 A7 D8 B3 D8 A7 D8 B3 D8 A7 D8 Aa Pdf

الحدادة أدوات الحدادة المسلحة ومصطلحاتها وأساسياتها بالصور أسود البيزنس

الحدادة أدوات الحدادة المسلحة ومصطلحاتها وأساسياتها بالصور أسود البيزنس

تدعيم واصلاح القواعد الخرسانية والطرق المختلفة وطريقه التنفيذ

تدعيم واصلاح القواعد الخرسانية والطرق المختلفة وطريقه التنفيذ

الخلطات الخرسانية و أنواعها و طرق تصميمها مهندس نت

الخلطات الخرسانية و أنواعها و طرق تصميمها مهندس نت

مكونات وانواع ومواصفات ومراحل صناعة و زمن تصلب الخرسانة أسود البيزنس

مكونات وانواع ومواصفات ومراحل صناعة و زمن تصلب الخرسانة أسود البيزنس

Source : pinterest.com